Часто необходимо изменить имеющуюся систему отопления, или создать новую. Это можно сделать своими руками, так как в самой системе отопления особых сложностей нет.
На что нужно обратить внимание при монтаже системы отопления в первую очередь? Размещать радиаторы необходимо правильно, а подключить их надежно….
Далее приведены рекомендации не только по монтажу, но и по подбору отдельных параметров системы отопления. Так как зачастую при самостоятельном монтаже осуществляется и «небольшое проектирование на лету»…
Большинство систем отопления собираются на основе трубопроводов из полипропилена. Причина – дешево и несложно сделать самому.
С чего начать монтаж
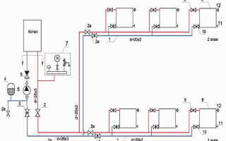
Чтобы сделать монтаж отопления необходим проект. Если его нет, то нужно создать хотя бы план-схему. «На бумажке в клеточку», или в чертежной программе, например, необходимо начертить схему соединений, желательно с привязкой к плану дома.
Необходимо указать обязательно:
- — все длины труб и их диаметры;
- — вид, количество, расположение фитингов.


Заранее должно быть определено количество радиаторов, количество секций в каждом из них, и место размещения.
Как подбираются радиаторы по мощности и подключаются
Выбирается и схема отопления — чем попутка отличается от тупиковой
Вопросы монтажа котельной и обвязки котла, а также выбора вида топлива здесь рассматриваться не будут. Их освещение можно найти и на данном ресурсе. Например, сейчас все больше популярно отопление твердотопливным котлом, совместно с электрическим, а также с включением в схему теплоаккумулятора (там, где нет природного газа).
Как подключается твердотопливный котел к буферной емкости
Все материалы приобретаются и доставляются к месту монтажа. К радиаторам необходимо приобрести стандартные комплекты — краны Маевского, заглушки, американки, дроссельные краны, термоголовки (если применяются) (всю обвязку радиатора), а также крепления в комплекте.


К трубам — все фитинги, а также подвесы для закрепления.


Вопрос подбора диаметра труб для отопления
При монтаже отопления всегда возникает вопрос, — «Какой диаметр труб выбрать». Для тех, кто раньше не сталкивался с отоплением, этот вопрос часто представляется как сложный.
С увеличением диаметра значительно увеличивается и цена.
Но выбирать придется всего лишь между внутренними диаметрами труб 16 мм и 20 мм. Возможно применение и 25 мм — для главных магистралей в крупных системах.
Соответственно для полипропилена, который применяется чаще, это наружные диаметры труб 20, 25, 32 мм соответственно.
Далее указываются наружные диаметры для полипропилена.
Котел всегда подключается диаметром не меньше 25 мм (наружный полипропилен), в больших системах (обычно от 150 м кв.), — от 32 мм, до первого разветвления.
.
Каждый радиатор всегда подключается к магистрали диаметром не более 20 мм.
Для 3 радиаторов подряд можно вести магистраль 20 мм, — если исходить из необходимой мощности, т.е. кол-ва теплоносителя в единицу времени.


Но, чтобы не перегружать насос системы, магистрали попутной и тупиковой схем делают обычно 25 мм, а 20 мм — магистраль только к последнему радиатору в тупиковой схеме.
Последовательное включение радиаторов (схема с большими недостатками, но в самодельных системах применяется для экономии) — не ниже 25 мм.
Таким образом, подобрать требуемый диаметр полипропилена при реконструкции отопления своими руками не проблема, — всегда можно сделать правильный выбор – 25 для магистрали, или 20 мм отводок для одного – двух потребителей. Если есть сомнения — тогда 25 мм.


Расположение и уровни трубопроводов
При монтаже и проектировании системы отопления необходимо обеспечить отсутствие воздушных пробок и самотечный слив системы.
Создание конфигурации труб, при которой возникают воздушные пробки, — не редкая ошибка при домашнем монтаже отопления.
Обычное решение — последовательное возвышение радиаторов от места разветвления основной магистрали. Тогда в самой нижней точке устанавливается сливной кран с выводом в подвал, на улицу ….
Последний радиатор в тупиковой схеме, будет соответственно выше других, — с него будет наибольший выпуск воздуха. В кольцевых схемах наивысшая точка выбирается произвольно.
Уклон труб выдерживается одинаковый. Он может быть минимальным. Обратный уклон не допускается.


Установка радиаторов
Все радиаторы устанавливаются либо горизонтально, либо с небольшим возвышением в сторону, где установлен кран Маевского.


Чтобы задать общие уклоны отопительного трубопровода в нескольких комнатах нужен водяной уровень или лазерный нивелир. В пределах одной комнаты или двух смежных можно обойтись и обычным уровнем, брать домер от пола, проверив предварительного его горизонтальность.


Последовательность
- Перед монтажем делается разметка положения труб на стене.
- Разметка расположения всех фитингов.
- Отмечаются точки подключения радиаторов.
При этом учитывается и положение радиаторов относительно пола и подоконника, желательно чтобы зазор был не меньше 10 см, но чем больше, тем лучше. - Отмечаются точки пересечение стен трубами.
- Отмечаются точки под крепление для радиаторов.
Эта разметка определяется исходя из точек подключения к трубам, и имеющегося крепежа. Кронштейны для навески радиаторов должны располагаться между его крайними секциями.
Опытные монтажники, для разметки крепления радиаторов используют шаблоны — фанерные дощечки с отверстиями. Достаточно его приложить к стене по точкам подключения к трубам…
Процесс монтажа системы отопления
В первую очередь к установке подготавливаются радиаторы. На них устанавливается заглушки, краны, воздухоотводчики. Для уплотнения резьбовых соединений используется лен со специальной смазкой.
Как уплотняются соединения в системе отопления


Затем наступает черед перфоратора. Устанавливаются крепления под радиаторы на стенах.
Бурятся отверстия в стенах под трубы.
Не допускается замоноличивать в бетонных конструкциях полипропиленовые трубы.Не рекомендуется делать скрытые проводки (в слое мягкого утеплителя) полипропиленовых труб из-за невысокой надежности соединений с фитингами.


После навески радиаторов на крепления, становится возможным измерять расстояния, и делать отрезки труб нужной длины.
Сварка полипропиленовых труб и монтаж трубопровода ведется в произвольной последовательности.
Для закрепления на стенах используются специальные клипсы, которые устанавливаются с помощью шурупов по мере монтажа труб.
Оставляются тепловые зазоры от 10 мм между торцами трубопровода и стенами, ввиду значительного теплового расширения полипропилена.


Для отопления используются трубы с армированием, обычно стекловолокном, типа PN-20 или PN-30.
Как сваривается полипропиленовый трубопровод и почему соединения ненадежные
Как правило, более эстетичная и надежная система отопления получается с использованием металлопластиковых труб. Но фитинги значительно дороже.
Как сделать правильные соединения металлопластиковых труб
Основным вопросом, при монтаже системы отопления в доме остается правильное проектирование и подбор оборудования. Например, важен выбор схемы подключения отопительных приборов, — какую схему для отопления выбрать